DIN 18015-1: Wie Elektroplaner der Dokumentationspflicht nachkommen

Verantwortlicher Redakteur:in: Rainer Trummer 3 min Lesedauer

Anbieter zum Thema

Die Änderungen des ersten Teils der der DIN 18015-1 im Mai 2020 stellen Elektroinstallateure und -planer vor neue Herausforderungen. Mit einer Planungssoftware können sie den Vorgaben zur umfangreichen Planung und Dokumentation besser nachkommen.

(Quelle:  Schneider Electric)
(Quelle: Schneider Electric)
  • Weitreichende Änderungen des ersten Teils der Norm DIN 18015 im Mai 2020 führten zu neuen Herausforderungen für Elektroinstallateure und Planer.

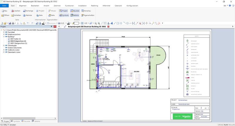
  • Mit der Planungssoftware SEE Electrical Building SE von Schneider Electric haben Elektroinstallateure und Planer die neuen Anforderungen der DIN 18015-1 an die Dokumentation sicher im Griff

  • Die grafische Raumplan- und Stromlaufplanerstellung ist mit nur wenigen Klicks möglich.

Als rechtsverbindliche Normreihe beschreibt die DIN 18015-1 die Planung von elektrischen Anlagen in Wohngebäuden. Gegenstand des ersten Teils der Norm sind die grundlegenden Ansprüche an eine elektrische Anlage. Weitreichende Änderungen dieses ersten Teils im Mai 2020 führten zu neuen Herausforderungen für Elektroinstallateure und Planer. Zentraler Punkt ist die Verpflichtung zur umfassenden Dokumentation des letzten Ausführungsstands einer Installation mit Hilfe eines Raumplans und eines Stromlaufplans. Um dieser Anforderung nach einer umfangreichen Planung und Dokumentation einfach und schnell nachkommen zu können, bietet Schneider Electric seinen Kunden ab Oktober 2020 mit der Software SEE Electrical Building SE ein auf den Wohnbau ausgelegtes, einfach zu bedienendes Planungstool. Weitere, sich durch die Norm ändernde Anforderungen betreffen beispielsweise die Anzahl von Leitungsschutzschaltern nach einem Gruppen-Fehlerstromschutzschalter sowie die Notwendigkeit, Maßnahmen zur Steigerung der Energieeffizienz bzw. zum Energiemanagement schon bei der Planung von elektrischen Anlagen zu berücksichtigen. Außerdem sieht die Norm den Überspannungsschutz für Kommunikationsverteiler von Zählerschrank oder Unterverteilung vor.

Eine Lösung: SEE Electrical Building SE

Bei der Lösung handelt es sich um eine Software für Installateure und Planer, die sich insbesondere für die professionelle Planung von Elektroinstallationen kleinerer Dimension in Ein- und Zweifamilienhäusern oder Wohnungen eignet. Grundlegendes Ziel bei der Entwicklung war es, Installateure und Planer in die Lage zu versetzen, eine vollständig normgerechte Elektroplanung realisieren zu können. In dem einfach zu bedienenden Software-Tool sind daher die Daten aller Produkte von Merten, Ritto, ABN und Schneider Electric bereits hinterlegt, weitere lassen sich manuell hinzufügen. Schneider Electric ist damit momentan der einzige Hersteller, der seinen Kunden und Partnern die Erstellung von Stromlaufplan (1-polig) und Grundrissplan (grafisch) in einer integrierten Softwarelösung ermöglicht.

Zum Funktionsumfang der Software gehören umfangreiche CAD-Befehle, die Generierung verschiedenster Listen auf Basis erstellter Pläne sowie Import- und Export-Möglichkeiten in zahlreiche unterschiedliche Formate. So lassen sich zum Beispiel PDF-Baupläne einlesen und mit SEE Electrical Building SE bearbeiten.

DIN 18015-1: Es gibt keine Übergangsfrist bei den Änderungen

Bei den Änderungen der DIN 18015-1 gibt es keine Übergangsfrist. Maßgeblich bei der Abnahme einer Anlage ist die jeweils aktuelle Norm. Ist zum Abnahmezeitpunkt eine neue Norm gültig, haben Installateure sogar eine Hinweispflicht gegenüber Bauherren. Diese können dann die alte Norm akzeptieren oder Anpassungen an die neue Norm einfordern. Daraus resultierende Zusatzkosten kann der Installateur dem Bauherren in Rechnung stellen.

Bezug und Verfügbarkeit für Partner und Kunden

Als Serviceprodukt ist SEE Electrical Building SE direkt über Schneider Electric zu beziehen. Die Kosten pro rechnergebundener Lizenz liegen bei jährlich 199 Euro. Kauf und kostenlose 30-Tage Testversion über das Kundenportal MySchneider.

Bild: SEE Electrical Building SE, Raumplan. Bildquelle: Schneider Electric

Weitere Informationen: https://www.se.com/de/de/

Erfahren Sie hier mehr über eine ECAD-Programmsuite mit neuem Editor und Augmented Reality.

Lesen Sie auch: "Verkehrsplanung in Gebäuden: Weltweiter Standard für Aufzüge"

Jetzt Newsletter abonnieren

Verpassen Sie nicht unsere besten Inhalte

Mit Klick auf „Newsletter abonnieren“ erkläre ich mich mit der Verarbeitung und Nutzung meiner Daten gemäß Einwilligungserklärung (bitte aufklappen für Details) einverstanden und akzeptiere die Nutzungsbedingungen. Weitere Informationen finde ich in unserer Datenschutzerklärung. Die Einwilligungserklärung bezieht sich u. a. auf die Zusendung von redaktionellen Newslettern per E-Mail und auf den Datenabgleich zu Marketingzwecken mit ausgewählten Werbepartnern (z. B. LinkedIn, Google, Meta).

Aufklappen für Details zu Ihrer Einwilligung