Wie sich der Wechsel auf eine andere BIM-Software auszahlen kann

Verantwortlicher Redakteur:in: Rainer Trummer 2 min Lesedauer

Anbieter zum Thema

Der norwegische Architekt Jakob Judis Sellesbakk erklärt, warum er die bekannte BIM-Software zurückließ und eine Lösung gefunden hat, die besser zu seinen Zwecken passt.

(Quelle:  Jakob Judis Dipl.-Ing. Architekt - Norwegen und Cadline Ltd)
(Quelle: Jakob Judis Dipl.-Ing. Architekt - Norwegen und Cadline Ltd)
  • Der norwegische Architekt Architekten Jakob Judis Sellesbakk setzt neu auf die BIM-Software Archline.XP.

  • Hier erklärt er, warum er beschlossen hat, bekannte BIM-Tools zu ersetzen, und dabei eine Lösung gefunden hat, die besser zu seinen Zwecken passt.

Jakob Judis Sellesbakk begann seine Arbeit als Architekt mit Archicad 6.0. Später sattelte er bürobedingt auf Revit um und dann wieder zurück zu Archicad 14. Im Zuge eines erneuten Wechsel stieß er dann auf die BIM-Software Archline.XP15. "Mein damaliger Arbeitgeber war dabei, das Programm in ein eigenes Kalkulationsprogramm einzuarbeiten. Ich habe angefangen, aus reiner Neugierde mit Archline.XP zu experimentieren und war nach kurzer Zeit fest davon überzeugt, dass dies ein einfach zu lernendes, vollwertiges CAD-BIM-Programm ist, das den beiden großen Programmen in keiner Weise nachsteht. Danach war es ein kleiner Schritt, zu Archline.XP zu konvertieren."

(Bild: Jakob Judis Sellesbakk. Bildquelle: Jakob Judis Sellesbakk, Dipl. Ing. Architekt, Norwegen und Cadline Ltd)
(Bild: Jakob Judis Sellesbakk. Bildquelle: Jakob Judis Sellesbakk, Dipl. Ing. Architekt, Norwegen und Cadline Ltd)
Archline.XP ist ein Programm, das durch sein Preis-Leistungs-Verhältnis besticht. Ich bin überzeugt davon, dass Archline.XP eine vollwertige BIM-Alternative für kleine und mittlere Architektur-Büros darstellt und in naher Zukunft in gleicher Höhe mit den Marktführern stehen wird. Ich kann die BIM-Software mit bestem Wissen und Gewissen allen Architekten, Innenarchitekten und Designern wärmstens empfehlen.

Jakob Judis Sellesbakk, Dipl. Ing. Architekt

Was Jakob Judis Sellesbakk an der BIM-Software schätzt

Das User-Interface der BIM-Software ist übersichtlich und durch gut lesbare Piktogramme leicht verständlich. Die Arbeit mit sowohl 3D- als auch 2D-Werkzeugen gestaltet sich durchgehend schnell und einfach. Entsprechende, logische Shortcuts machen dies zudem effektiver. Als Stärken gegenüber den Marktführern benennt Sellesbakk:

  • das automatisierte Dachwerkzeug, welches einfach zu bedienen ist, sich individuell anpassen lässt sowie durch entsprechende Templates viel Zeit und Aufwand spart;

  • ein intelligentes Treppenwerkzeug, dass sowohl aus Templates bedient wird als auch durch 2D-Linien individuelle Treppen und Rampen errechnet, deren Material zu jeder Zeit geändert werden kann;

  • eine intelligente Bauteil-Priorisierung, die in Schnittdarstellungen Wand- Decken- und Dachelemente entsprechend zusammenführt;

  • ein Vielzahl von brauchbaren Tür- und Fensterelementen inklusive Sonderformen, die sich ohne großen Aufwand individuell anpassen lassen;

  • eine gut sortierte Objekt-Bibliothek;

  • schneller und einfacher Import von Bibliotheken aus 3D-Objects und allen BIM-Objekten;

  • Alle Objekte sind in das Projekt intergiert und auch durch spätere Programm-Versionen lesbar.

  • die automatisierte Bemaßung, die durch entsprechende Vorwahl entweder nach unterschiedlichen europäischen Normen durchgeführt wird oder individuell angepasst werden kann;

  • das Platzieren des Projektes in das Baugebiet durch eine einfache Google-Maps-Integration;

  • Das Anpassen der Baugrube in die Landschaft ist durch einfache Kommandos durchzuführen und halbautomatisiert möglich.

  • Auch während des Render-Vorganges lassen sich Materialien, Lichtquellen und Bildeinstellungen verändern

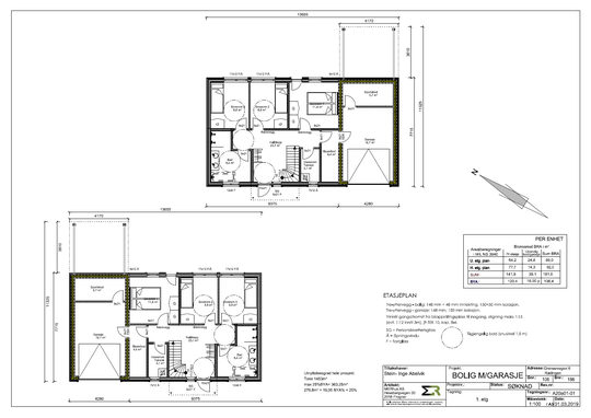
(Ein typisches Projekt mit der BIM-Software Archline.XP. Bildquelle: Jakob Judis Sellesbakk, Dipl. Ing. Architekt, Norwegen und Cadline Ltd)
(Ein typisches Projekt mit der BIM-Software Archline.XP. Bildquelle: Jakob Judis Sellesbakk, Dipl. Ing. Architekt, Norwegen und Cadline Ltd)

Bild oben: Ein visuelles Design aus demselben Projekt, das mit der eigenen Rendering-Komponente der BIM-Software Archline.XP entstanden ist. Bildquelle: Jakob Judis Sellesbakk, Dipl. Ing. Architekt, Norwegen und Cadline Ltd.

Weitere Informationen: http://www.sellesbakk.com/, https://www.archlinexp.eu/ und https://encee.de/cadcam

Erfahren Sie hier mehr über die digitale Vernetzung mit BIM.

Lesen Sie außerdem: "Nachunternehmermanagement in der Baubranche: Haftungssicher und digital mit KI"

Jetzt Newsletter abonnieren

Verpassen Sie nicht unsere besten Inhalte

Mit Klick auf „Newsletter abonnieren“ erkläre ich mich mit der Verarbeitung und Nutzung meiner Daten gemäß Einwilligungserklärung (bitte aufklappen für Details) einverstanden und akzeptiere die Nutzungsbedingungen. Weitere Informationen finde ich in unserer Datenschutzerklärung. Die Einwilligungserklärung bezieht sich u. a. auf die Zusendung von redaktionellen Newslettern per E-Mail und auf den Datenabgleich zu Marketingzwecken mit ausgewählten Werbepartnern (z. B. LinkedIn, Google, Meta).

Aufklappen für Details zu Ihrer Einwilligung