2016 beauftragte die Gemeinde Bordeaux Métropole K Architectures mit der Renovierung der Laufbahn und der Tribünen des Stadions sowie mit dem Bau einer Wartungsabteilung und vor allem eines neuen Sportkomplexes, in dem Trainingshallen, ein Dojo, ein Kraftraum, eine Verwaltungsabteilung und Räume für Geselligkeit untergebracht sind.
(Bild: Guillaume Amat)
Für Karine Herman und Jérôme Sigwalt von K Architectures ist der Wald von Thouars ein lebendiger Mythos, die Darstellung einer Utopie, eines bäuerlichen Ideals, in dem der Mensch die Fähigkeit wiedererlangt hat, in Symbiose mit seiner Umwelt zu leben.
2016 beauftragte die Gemeinde Bordeaux Métropole K Architectures mit der Renovierung der Laufbahn und der Tribünen des Stadions sowie mit dem Bau einer Wartungsabteilung und vor allem eines neuen Sportkomplexes.
(Bild: Guillaume Amat)
Die Aufgabe
Der Gemeindewald von Thouars ist ein Naturdenkmal in der Stadt Talence nahe Bordeaux. Eine zusätzliche Fläche von 4.000 m² zu bauen, ohne einen einzigen Baum zu fällen, erschien fast wie Zauberei. Hier lag das ewige und unendlich aktuelle Dilemma: "Kann man eine lebendige Kathedrale opfern, um einer künstlichen Kapelle Platz zu machen? Und selbst wenn die begrünten Lichtungen längst von den natürlichen Biotopen zurückerobert worden waren, welche Form konnte dieses Programm in der Landschaft annehmen, wenn es Gebäude in Schuppengröße erforderte?"
Das Projekt stellt sich eine Waldgeschichte vor, in der die Architektur mimetisch und minimalistisch zwischen den Bäumen eingeschrieben ist. Die weitläufigen Hallen des Programms wurden als eine Art Weiler mit rudimentären Scheunen konzipiert. Die Architekten haben die Volumina sowohl im Grundriss als auch im Profil fragmentiert und durch Einschnitte unterteilt, um das Gefühl von Masse zu reduzieren. Die Fassaden bestehen aus verdunkelten Holzlatten, die den Eindruck vermitteln, in den Schatten des Vordachs eingetaucht zu sein.
Die Dächer sind auf ein dünnes, bescheidenes Wellblech reduziert, das an Nebelschwaden erinnern soll.
Die Einfachheit und das Weglassen überflüssiger Elemente dieser Konstruktionen unterstreichen einen reduzierten Lebensstil, der das Wesentliche betont. Es ist ein Projekt, das Gelassenheit vermitteln will, in der Gegenwart der Natur, mit der es sich versöhnen will -- und in der Gegenwart der Sportler, um ihnen Ruhe zu bieten. Diese Architektur ist auch eine Fortsetzung der lokalen Geschichte, der "Girolle", des beliebten Hauses, das in den 60er Jahren von der "École Bordelaise" entworfen wurde: Die Leichtigkeit der Dächer, ihre weiten Überhänge, das Spiel der Transparenzen, die Einbeziehung des natürlichen Lichts und der Landschaft selbst, die konstruktive Aufrichtigkeit sowie die Verwendung von Holz als architektonischem Material.
Die Fassaden bestehen aus verdunkelten Holzlatten, als ob sie in den Schatten des Vordachs eingetaucht wären.
(Bild: Guillaume Amat)
Der Pavillon der Gärtner
Dieser kleine Schuppen bietet den Gärtnern und ihren Geräten am Waldrand Unterschlupf. Er teilt deren Architektursprache der Hallen.
Die Südkurve
Die Südkurve beherbergt die Lagerräume, auf denen das weiße Scheunendorf steht, das jedes Jahr die VIPs von Decastar empfängt. Eine Palisade aus schrägen, gebrannten Latten schützt eine Galerie, die die Lagerräume versorgt, und bildet einen Unterbau, der das allgemeine architektonische Thema fortsetzt, das jetzt das Gelände prägt.
Die weitläufigen Hallen des Programms wurden als ein Weiler mit rudimentären Scheunen konzipiert.
(Bild: Guillaume Amat)
Die Tribüne
Diese in den 70er Jahren errichtete Konstruktion wurde renoviert, ohne ihr Aussehen wesentlich zu verändern. Lediglich der Sockel, die Pfeiler und die Fassaden zum Vorplatz erhielten einen dunklen Farbton, um sie unauffälliger zu gestalten und besser mit den neuen Gebäuden in Einklang zu bringen. Der Bauch des Gebäudes, in dem sich die Umkleideräume befinden, wurde komplett in einem sandfarbenen Monochrom neu gestaltet.
Die weitläufigen Hallen des Programms wurden als ein Weiler mit rudimentären Scheunen konzipiert.
(Bild: Guillaume Amat)
(Bild: Guillaume Amat)
Die in den 70er Jahren errichtete Tribünenkonstruktion wurde renoviert, ohne ihr Aussehen wesentlich zu verändern.
(Bild: Guillaume Amat)
Lageplan
(Bild: K Architectures)
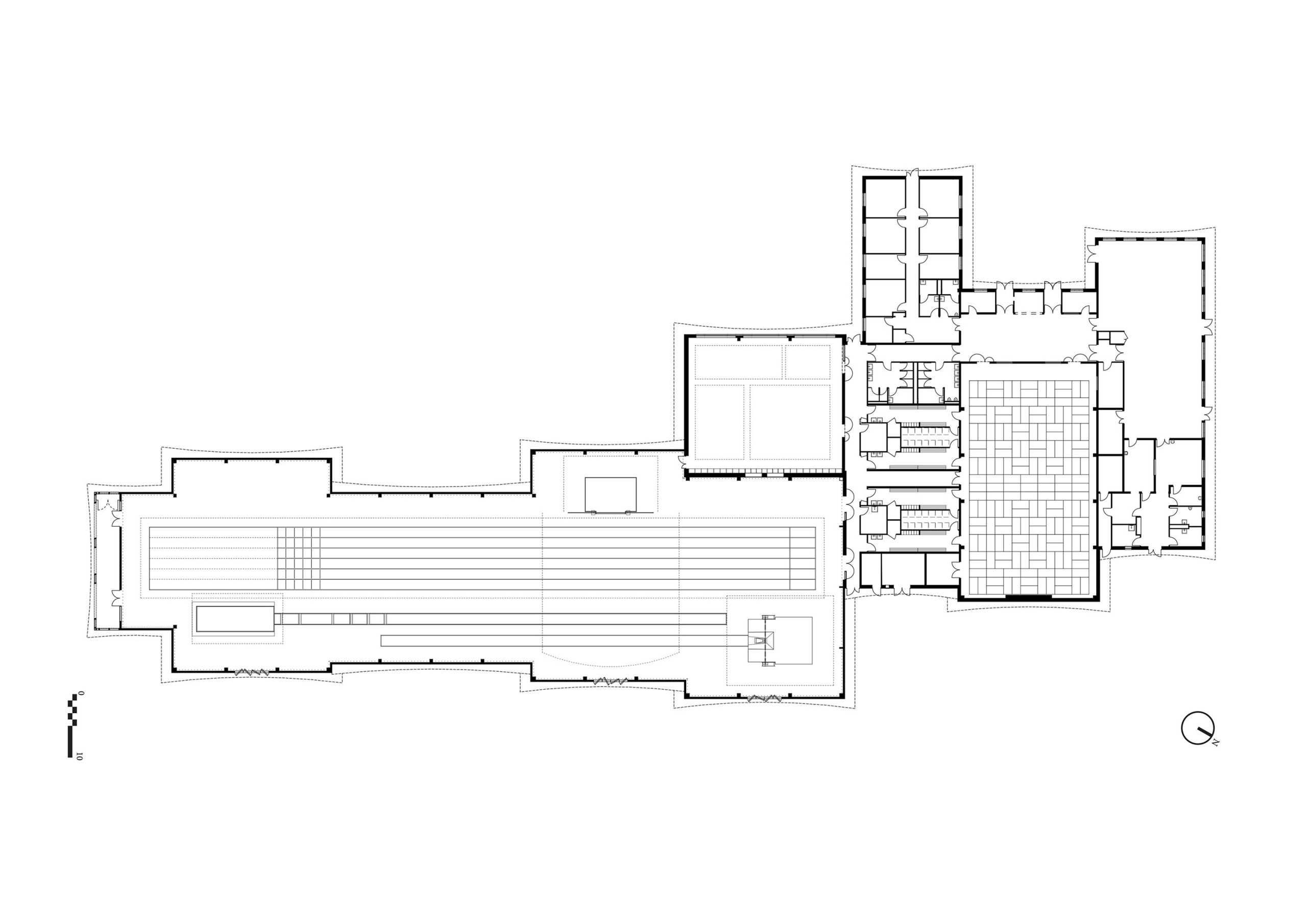
Grundriss
(Bild: K Architectures)
Technische Daten
Projektträger: Bordeaux Métropole
Projektleitung: Team: K Architectures: beauftragter Architekt, Bosco architect partner: Entwurf, Alexandre Rolland: Studie und Bauplanung, Cetab: technische Studien, Osmose: Sporttechnik, ITAC: akustische Studien, AIA Management: Baustellenorganisation und -management
Programm: Bau eines Sport- und Verwaltungskomplexes mit einer Leichtathletikhalle, einem Kraftraum, einem Dojo, einem Gastronomiebereich und einem Verwaltungszentrum.
Renovierung des Stade Pierre-Paul Bernard, Umbau der Laufbahnen, Anpassung der Anlagen an die internationalen Wettkampfnormen, Renovierung der Tribüne mit 1500 Plätzen. Bau des Pavillons für den Gärtner.
Budget: 12,2 Millionen €
Fläche: 5'102 m²
Ausführung: Holzrahmenbau und Wandverkleidungen, Betonfundamente und Unterkellerungen, Metallbedachung
Stand: 16.12.2025
Es ist für uns eine Selbstverständlichkeit, dass wir verantwortungsvoll mit Ihren personenbezogenen Daten umgehen. Sofern wir personenbezogene Daten von Ihnen erheben, verarbeiten wir diese unter Beachtung der geltenden Datenschutzvorschriften. Detaillierte Informationen finden Sie in unserer Datenschutzerklärung.
Einwilligung in die Verwendung von Daten zu Werbezwecken
Ich bin damit einverstanden, dass die WIN-Verlag GmbH & Co. KG, Chiemgaustraße 148, 81549 München einschließlich aller mit ihr im Sinne der §§ 15 ff. AktG verbundenen Unternehmen (im weiteren: Vogel Communications Group) meine E-Mail-Adresse für die Zusendung von redaktionellen Newslettern nutzt. Auflistungen der jeweils zugehörigen Unternehmen können hier abgerufen werden.
Der Newsletterinhalt erstreckt sich dabei auf Produkte und Dienstleistungen aller zuvor genannten Unternehmen, darunter beispielsweise Fachzeitschriften und Fachbücher, Veranstaltungen und Messen sowie veranstaltungsbezogene Produkte und Dienstleistungen, Print- und Digital-Mediaangebote und Services wie weitere (redaktionelle) Newsletter, Gewinnspiele, Lead-Kampagnen, Marktforschung im Online- und Offline-Bereich, fachspezifische Webportale und E-Learning-Angebote. Wenn auch meine persönliche Telefonnummer erhoben wurde, darf diese für die Unterbreitung von Angeboten der vorgenannten Produkte und Dienstleistungen der vorgenannten Unternehmen und Marktforschung genutzt werden.
Meine Einwilligung umfasst zudem die Verarbeitung meiner E-Mail-Adresse und Telefonnummer für den Datenabgleich zu Marketingzwecken mit ausgewählten Werbepartnern wie z.B. LinkedIN, Google und Meta. Hierfür darf die Vogel Communications Group die genannten Daten gehasht an Werbepartner übermitteln, die diese Daten dann nutzen, um feststellen zu können, ob ich ebenfalls Mitglied auf den besagten Werbepartnerportalen bin. Die Vogel Communications Group nutzt diese Funktion zu Zwecken des Retargeting (Upselling, Crossselling und Kundenbindung), der Generierung von sog. Lookalike Audiences zur Neukundengewinnung und als Ausschlussgrundlage für laufende Werbekampagnen. Weitere Informationen kann ich dem Abschnitt „Datenabgleich zu Marketingzwecken“ in der Datenschutzerklärung entnehmen.
Falls ich im Internet auf Portalen der Vogel Communications Group einschließlich deren mit ihr im Sinne der §§ 15 ff. AktG verbundenen Unternehmen geschützte Inhalte abrufe, muss ich mich mit weiteren Daten für den Zugang zu diesen Inhalten registrieren. Im Gegenzug für diesen gebührenlosen Zugang zu redaktionellen Inhalten dürfen meine Daten im Sinne dieser Einwilligung für die hier genannten Zwecke verwendet werden.
Recht auf Widerruf
Mir ist bewusst, dass ich diese Einwilligung jederzeit für die Zukunft widerrufen kann. Durch meinen Widerruf wird die Rechtmäßigkeit der aufgrund meiner Einwilligung bis zum Widerruf erfolgten Verarbeitung nicht berührt. Um meinen Widerruf zu erklären, kann ich als eine Möglichkeit das unter https://kontakt.vogel.de/de/win abrufbare Kontaktformular nutzen. Sofern ich einzelne von mir abonnierte Newsletter nicht mehr erhalten möchte, kann ich darüber hinaus auch den am Ende eines Newsletters eingebundenen Abmeldelink anklicken. Weitere Informationen zu meinem Widerrufsrecht und dessen Ausübung sowie zu den Folgen meines Widerrufs finde ich in der Datenschutzerklärung, Abschnitt Redaktionelle Newsletter.