BSFZ-Siegel für neuartigen BIM-2D-Grundrissplaner Über die Geometrien hinaus

Verantwortliche:r Redakteur:in: Andreas Müller 2 min Lesedauer

Anbieter zum Thema

Die Bescheinigungsstelle Forschungszulage des Bundesforschungsministerium hat nach längerer Prüfung der Immersight GmbH aus Ulm das BSFZ-Siegel verliehen. Das Unternehmen hat einen neuartigen 2D-Grundrissplaner entwickelt, der direkt auf BIM basiert.

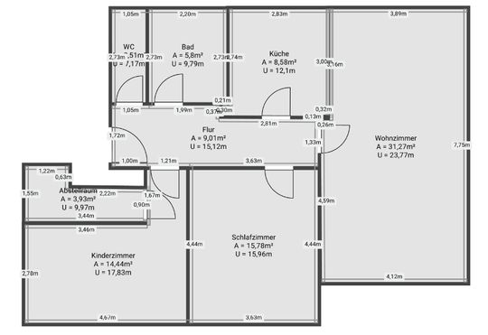
BSFZ-Siegel für Innovation: Der 2D-Grundrissplaner von Immersight(Bild:  Immersight)
BSFZ-Siegel für Innovation: Der 2D-Grundrissplaner von Immersight
(Bild: Immersight)

Immersight erhält das BSFZ-Siegel für seinen neuen BIM-Planer Das Ulmer Technologie-StartUp hat für das Jahr 2024 das Siegel der Bescheinigungsstelle Forschungszulage erhalten. Im Hinblick auf den 2D-Grundrissplaner attestiert das Bundesforschungsministeriums die Innovationskompetenz des Unternehmens.

2D-Grundrissplaner: Alle Objekte sind smart

BIM ist praktisch die Methode zum digitalen Bauen und wird maßgeblich in Deutschland und Europa vorangetrieben. Der 2D-Grundrissplaner von Immersight basiert auf BIM und ist damit vollständig smart. Während man in den meisten Planungsprogrammen einfach nur Geometrien plant (oft Zeichenprogramme genannt), sind bei BIM alle Objekte auch wirklich als solche gekennzeichnet. Das bedeutet, dass mittels der Ifc-Schnittstelle jegliche BIM-kompatible Software auch direkt Räume, Wände, Türen usw. automatisch einlesen kann.

Der 2D-Grundrissplaner ermöglicht es  Anwendern, den Objekten einfach weitere Attribute nach BIM-Standard anzuhängen. (Bild:  Immersight)
Der 2D-Grundrissplaner ermöglicht es Anwendern, den Objekten einfach weitere Attribute nach BIM-Standard anzuhängen.
(Bild: Immersight)

Der von Immersight entwickelte 2D-Planer geht noch darüber hinaus und erlaubt es dem Nutzer, einfach weitere Attribute nach BIM-Standard den Objekten anzuhängen. So kann eine Wand auch direkt einen U-Wert haben, was für die energetische Sanierung wichtig ist. Man kann sagen, dass alle Objekte im Plan smart sind und wissen, was sie sind und zu wem die gehören. Mittels Ifc Format lässt sich der 2D-Plan auch direkt in ein 3D-Programm importieren und hat alle wichtigen Eigenschaften in 3D zur Weiterverarbeitung.

Mit der 3D-Vermessung nutzbar

Der 2D-Planer von Immersight ist auch mit der hauseigenen 3D-Vermessung mittels 360°-Kamera nutzbar. Bestehende Räume, die zuvor in zehn Sekunden 360°-fotografiert wurden, sind so direkt in 2D im Plan. Das eignet sich besonders für die Bestandssanierung. Natürlich können damit auch mehrere Räume, ganze Wohnungen und Gebäude erfasst und somit sehr schnell in einen Bestandsplan zusammengefügt werden.

Der 2D-Grundrissplaner weist noch eine Besonderheit auf: Während die meisten Planungsprogramme den Von-Außen-nach-Innen-Ansatz verfolgen, ist es beim immersight Planer andersherum. Dieser geht raumweise vor, und der Gesamtplan entsteht durch das Zusammenfügen einzelner Räume. Bisher ist die Erfassung von ganzen Gebäuden für BIM-Planung dem Laser-Aufmaß vorbehalten und mit sehr hohen Kosten verbunden. Scan-to-BIM wird somit günstiger und ist damit besonders für das Handwerk attraktiv. Für die Entwicklung hat die Immersight GmbH rückwirkend die Auszeichnung der BSFZ erhalten, sowie 30‘000 Euro vom Forschungsministerium.

Weitere Informationen: https://immersight.com/

Jetzt Newsletter abonnieren

Verpassen Sie nicht unsere besten Inhalte

Mit Klick auf „Newsletter abonnieren“ erkläre ich mich mit der Verarbeitung und Nutzung meiner Daten gemäß Einwilligungserklärung (bitte aufklappen für Details) einverstanden und akzeptiere die Nutzungsbedingungen. Weitere Informationen finde ich in unserer Datenschutzerklärung. Die Einwilligungserklärung bezieht sich u. a. auf die Zusendung von redaktionellen Newslettern per E-Mail und auf den Datenabgleich zu Marketingzwecken mit ausgewählten Werbepartnern (z. B. LinkedIn, Google, Meta).

Aufklappen für Details zu Ihrer Einwilligung